Инсталяционная система Tece 9330005 для биде
С помощью всего лишь нескольких специальных деталей в ванной комнате несложно соорудить систему монтажа вдоль стены, в углу комнаты или в виде свободностоящей перегородки. Благодаря своей универсальности TECEprofil не только подходит для индивидуальных строительных проектов, но и неоценима для больших объектов с различными компоновками ванных и туалетных комнат. Нужно ли оборудовать санузел с учётом потребностей инвалидов, требуется ли установить угловую конструкцию — всегда найдется подходящий модуль.
TECEprofil уже удовлетворяет будущим требованиям по звукоизоляции, прочности, универсальности применения и легкости монтажа..
TECEprofil – умнo
Любую каркасную систему можно собрать всего из трёх основных элементов.
Основа системы – стальной профиль TECE, угловое соединение и одинарное крепление. Данный принцип соединения, простой и одновременно гениальный, позволяет в кратчайшее время соорудить каркасную конструкцию без специального инструмента.
TECEprofil – универсально
Все модули универсальны и, благодаря широкому ассортименту монтажных элементов, могут быть установлены как перед стеной, так и в металлические или деревянные каркасные конструкции.
TECEprofil – просто и чисто
С применением TECEprofil можно выполнить облицовку плиткой всей ванной комнаты за один рабочий день.
Отсутствие "грязных" строительных работ существенно экономит время. TECEprofil – экономно
Оптимальный ассортимент упрощает хранение на складе. Благодаря предварительной сборке отдельных узлов в мастерской TECEprofil позволяет повысить доход специалистов по монтажу.
TECEprofil – надёжно
Для профессионалов на первом месте всегда стоит надежность и гарантия. Звукоизоляционные и противопожарные свойства TECEprofil подтверждены ведущими европейскими институтами.
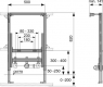
Застенный модуль (h = 820 мм) для установки биде.
Комплект поставки:
- комплект крепежных элементов для установки модуля;
- комплект крепежных элементов для установки биде (установочное расстояние 180 или 230 мм);
- фановый отвод ∅ 50/40 мм с резиновой манжетой;
- установочные пластины для монтажа фитингов системы водоснабжения;
- комплект защитных заглушек для фанового отвода и фитингов системы водоснабжения;
- инструкция по установке застенного модуля.
Дополнительно приобретается:
- прокладка звукоизолирующая (арт. 9 200 010)
Характеристики
- Tece
- для біде
- TECEprofil
- монтажная рама
- Германія
























Коментарі
Поки немає коментарів