Головна
→ Інсталяційні системи (інсталяція)
→ Alcaplast
→ Прихована система інсталяції Alca AM101/1000-0005 WRAS для сухої установки (для гіпсокартону)
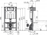
Прихована система інсталяції Alca AM101/1000-0005 WRAS для сухої установки (для гіпсокартону)
Технічні характеристики:
- Підведення води до задньої стінки бачка або зверху бачка здійснюється за допомогою монтажних отворів G1/2 "
- Робочий діапазон тиску води 0,05 – 1,0 MPa
- Рекомендований діапазон тиску води 0,3 – 0,5 MPa
- Великий змив 6 – 9 l
- Малий змив 2,5 – 3,5 l
- Стандартні налаштування великого змиву 6 l
- Стандартні настройки малого змиву 3 l
- Гігієнічний резерв 3 l
- Об'єм води в бачку: 9 l
- здатність витримувати навантаження до 250 кг 400 kg
Застосування:
- Для підвісних унітазів
- Для монтажу до несучої стіни або в гіпсокартонну конструкцію
- Для підлоги з товщиною стяжки 0–200 мм
- Для установки підвісного унітазу з інтервалом кріплення 180 мм або 230 мм
Характеристика:
- Містить дозатор таблеток для унітазу
- Регульовані висувні ніжки в діапазоні 0-200 мм з гальмівною системою
- Рухомий тримач для стокового коліна, встановлюється в восьми положеннях на відстані 0–93 мм
- Кутовий вентиль з можливістю підключення до системи трубопроводів Mepla
- Конструкція рами дозволяє виробляти монтаж до профілю для гіпсокартону, призначеного для цього, або до несучої стіни
- Встановлена система закривається гіпсокартонним листом і не потребує додаткових елементів кріплення
- Конструкція полістирольної ізоляцією запобігає процес конденсації на поверхні бачка і послаблює вібрацію в будівельній конструкції
- Можливість установки кронштейна з переходом DG 1/2" для підключення сидіння-біде або бідетти
- Петлі бака з двокомпонентного матеріалу ізолюють передачу вібрацій від будівель
- Можливість нахилу резервуара для легкого встановлення в дерев'яних будинках або мобільних осередках.
- Подвійний змив, незалежно регульований, з гігієнічним резервом
- Підходить для установки пневматичного або сенсорного змиву
- Сумісна з усіма кнопками управління Alca
- Можливість сервісу без використання інструментів
- Введення води ззаду / зверху в середині / зліва / справа
- Бачок зроблений з одного фрагмента поліпропілену, що забезпечує його 100% герметичність
- Кришка сервісного отвору спрощує процес монтажу і захищає від вологи та бруду
- Монтажна глибина рукава регулюється від 20 до 95 мм
- Монтажна глибина 125 мм
- Матеріал несучої конструкції: метал, оброблений порошковою фарбою
Зміст комплекту:
- Бачок з впускним і випускним механізмом
- самонесуча рама
- Різьбове з'єднання 1/2" для підведення води з вбудованим кутовим вентилем 1/2"–3/8"
- Монтажний комплект: гвинт Ø8×60 – 4 шт., Дюбель Ø12 – 4 шт.
- Монтажний комплект для кріплення унітазу: шпилька М12 – 2 шт., Шайба – 4 шт., Ковпачок – 2 шт., Гайка – 2 шт., Гофрований рукав – 2 шт.
- Коліно стоку HT 90/90 поліетилен, PE-HD
- Прокладка, патрубок поліпропілен, манжета
- Прокладка, патрубок поліпропілен, ущільнення патрубка
- Монтажний комплект кришок для захисту технічних отворів при установці системи
- Рукав сервісного отвору двусоставний, легко скорочується
- Набір для введення туалетних пігулок
Характеристики
- Alca
- для унітазу
- WRAS
- монтажна рама
- Чехія





Коментарі
Поки немає коментарів