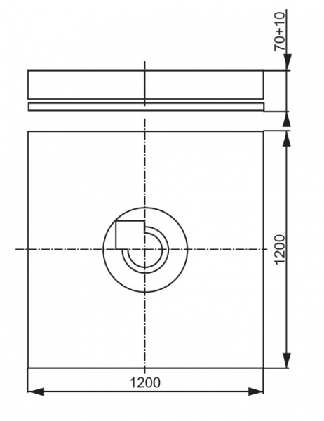
Разъемное основание Sanit 02.248.00..0000 120x120 см
Системные решения для душевых поддонов на уровне пола
Основные характеристики:
- SANIT Разъемное основание из пенопласта для заполнения пустого пространства под душевым поддоном
- Для трапа 823/BW и 823/BS
- Квадратной формы
- Из 2-х частей
- Высота: 70 мм и 10 мм
- Применяется для подгонки по высоте при установке душа на уровне пола
- Вместо бетонного основания
- С вырезом для монтажа трапа
- Материал: особо прочный полистирол
- Специальные модели по заказу!
- Размер (ДхШхВ): 1200х1200х70+10 мм
Характеристики
- Sanit
- основание
- для піддонів
























Коментарі
Поки немає коментарів