Трап с гидрозатвором MCH 445
Двухкорпусный трап с горизонтальным подключением создан для монтажа во влажных помещениях с большим объёмом воды. Различные типы фланцев позволяют выполнять гидроизоляцию пола жидкими растворами или рулонными материалами. Специальный фартук (Арт. 391/1) поможет укрепить гидроизоляционный слой на стыке трапа с бетонной стяжкой. Возможность регулирования высоты монтажа +/- 56 мм, а также увеличение монтажной высоты благодаря использованию вставного элемента (Арт. 389/9).
Решетка изготовлена из полированной нержавеющей стали толщиной 1,5 мм, благодаря чему трап имеет привлекательный внешний вид и долгий срок службы. Внутренний наклон решетки повышает пропускную способность трапа и ускоряет сбор воды с поверхности пола.
Характеристики:
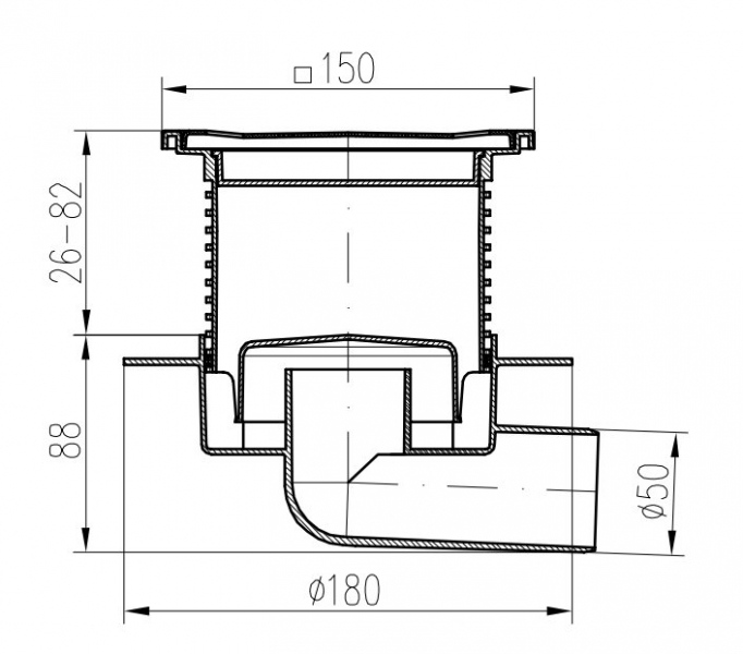
- Подключение к трубе: DN50
- Монтажная высота: 114-170 мм
- Материал решетки: нержавеющая сталь
- Габариты решетки с рамкой: 150х150 мм
- Материал корпуса: модифицированный полипропилен
- Пропускная способность: 79-82 л/мин
- Максимальная температура: 90 °С
- Класс нагрузки: К3 (до 300 кг)
- Сертифицировано согласно EN 1253-1
- Срок службы: 25 лет
Основные характеристики товара:
- Тип: двухкорпусной
- С горизонтальным подключением
- Сифон с гидрозатвором
- С прижимным фланцем
- Пропускная способность, л/мин: 79
- Решетка: нержавеющая сталь
- Квадратная решетка с рамкой
- Вес изделия: 0,76 кг
- Размер: 180х114-170х150 мм
Характеристики
- MCH
- трап
- помещения с высокой влажностью
- 180
- боковий
- 180


























Коментарі
Поки немає коментарів